Ванна квариловая Villeroy&Boch My Art UBQ180MYA2V-01 180x80 белая

По запросу

Лучшая цена

Ниже средней рыночной

За наличные
145 500 ₽
/ счет, карта:
148 470 ₽
Доставка на дом:
Самовывоз: бесплатно. Где забрать?
Сборка и установка: 6000 ₽
Заказать консультацию у персонального менеджера

Характеристики

Артикул
UBQ180MYA2V-01
Бренд
Коллекция
Страна
Германия
Цвет
Материал
Слив
Тип покрытия
Объем
210
Толщина материала
20
Комплектация
Модификация
ДxШxВ, см
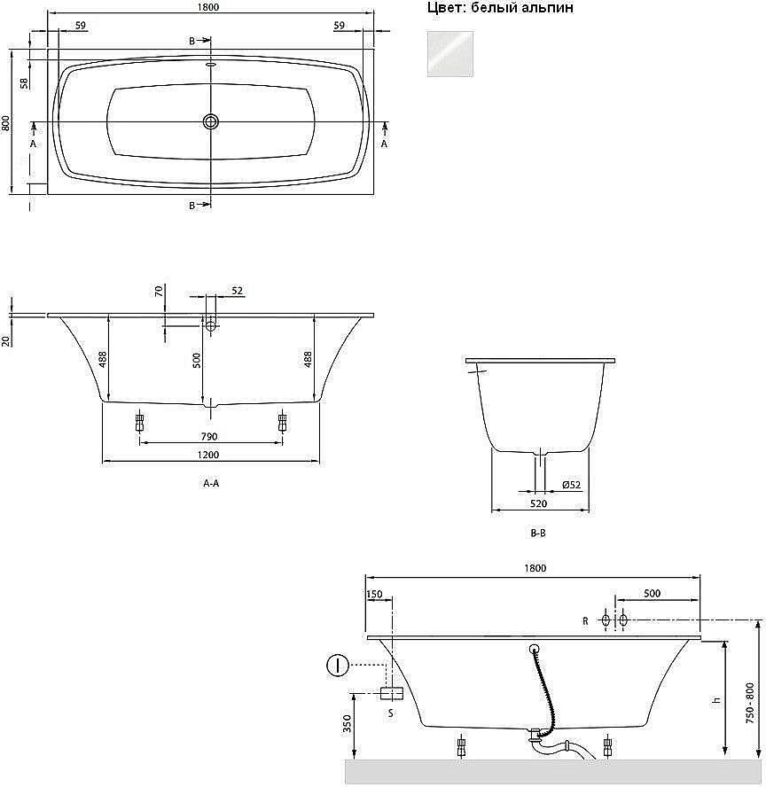
180x80x75

Как определить сторону изделия

Ванна квариловая Villeroy&Boch My Art UBQ180MYA2V-01 180x80 белая

Ванна квариловая из коллекции My Art немецкого производителя Villeroy & Boch

Прямоугольная ванна Villeroy & Boch My Art, выполненная в оригинальном и необычном дизайне, устанавливается без каркаса на ножки, которые входят в комплект. Закругленные линии углубления чаши создают дополнительную свободу, создавая внутри пространство, повторяющее контуры фигуры человека. Внутренняя часть и внешние поверхности в соответствие с задумкой дизайнеров максимально гармонично дополняют друг друга. Для такой модели устанавливается настенный или напольный смеситель, монтаж в кромку ванны невозможен.
Cлив-перелив не входит в комплект и приобретается отдельно. Сделано это специально, чтобы по месту установки выбрать удобный вариант подключения к системе канализации. Высота указана с ножками.
ВНИМАНИЕ! Отверстие для перелива отсутствует и просверливается самостоятельно в удобном для клиента месте, для чего в комплект к ванне прилагается сверло.
Материал: кварил (Quaryl®) –инновационный материал, а именно равномерная, гомогенно окрашенная смесь кварцевой муки (природный минерал) и акрила. Изделия из Quaryl® отличаются долголетним качеством и легкостью в уходе.
Установка: Встраиваемая
Ориентация: Универсальная
Высота, мм: 750
Глубина, мм: 500
Объём (л): 210
Цвет: Белый
Число мест: 1
Отверстие под перелив: Нет
Устройство перелива: Приобретается отдельно
Расположение слива-перелива: По центру
Ножки: Есть в комплекте
Антискользящее покрытие: Нет
Система гидромассажа: Установка не предусмотрена
Система аэромассажа: Установка не предусмотрена
Хромотерапия: Установка не предусмотрена
Подводная подсветка: Установка не предусмотрена
Каркас: Установка не предусмотрена
Ручки: Установка не предусмотрена
Подголовник: Установка не предусмотрена

Гарантия: 10 лет

Услуги

1 товар
от 6 000 ₽
Установка

Сервисное обслуживание

Сервис с заботой

Обмен и возврат

Вы можете вернуть товар, который не был использован

Подробнее

Установка

Закажите установку любого товара при покупке. С гарантией.

 

Гарантийное обслуживание

Официальная гарантия от производителя. Авторизованные сервисные центры.

Подробнее
Отзыв о сайте